Aškombas nams
Aškombas nams
- Uzticamas kvalitātes garantija
- Ilgtspējīga koka konstrukcija
- Iekļauta bezmaksas piegāde
Couldn't load pickup availability
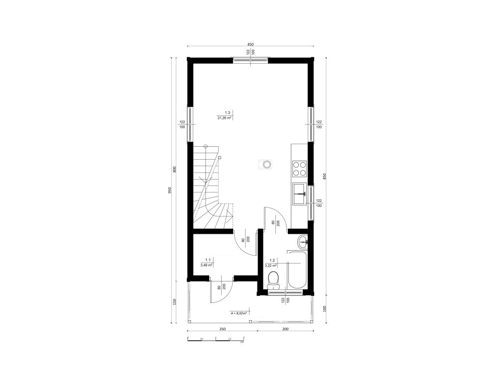
🪵 Ashcombe Lodge – divstāvu koka māja ar bēniņiem un kompaktu terasi (42,61 m²)
Ashcombe Lodge ir eleganta divstāvu koka māja ar stāvu divslīpju jumtu, bēniņu telpu un kompaktu terasi, kas padara to lieliski piemērotu dārza īpašumiem, atpūtas brīvdienu namiņiem vai nedēļas nogales relaksācijai Latvijā. Tās baļķu imitācijas fasāde, PVC dubultstiklojuma logi un prasmīgi izstrādāts plānojums nodrošina perfektu līdzsvaru starp šarmu un praktiskumu. Spirālveida kāpnes nodrošina ērtu piekļuvi otrajam stāvam, savukārt plašie uzlabojumu varianti ļauj pilnībā pielāgot māju jūsu stilam un vajadzībām.
⭐ Galvenās iezīmes
-
Divslīpju jumts ar 45° slīpumu un paaugstinātu kores augstumu
-
7 PVC dubultstiklojuma logi, t.sk. balkona durvis (120×100 cm, 90×200 cm)
-
5 masīvkoka durvis:
-
1 × ārējās 80×205 cm
-
4 × iekšdurvis 80×200 cm
-
-
Baļķu imitācijas egles un priedes ārsienu apšuvums
-
1 m dziļa terase pie ieejas
-
29 mm plātnes biezums konstrukcijas stabilitātei
-
Iekļautas spirālveida koka kāpnes
-
Pieejami pilni siltumizolācijas un apdares jauninājumi
📏 Izmēri un struktūra
-
Sienas augstums: 2,50 m
-
Grēdas augstums: 6,20 m
-
Jumta slīpums: 45°
-
Izmēri: 4,5 × 8,5 m + 1 m terase
-
Ēkas platība: 42,75 m²
-
Izmantojamā platība: 42,61 m²
-
Grīdas platība: 55,05 m²
-
Plātnes biezums: 29 mm
🪵 Materiāli
-
Konstrukcija: priede un egle
-
Ārējais apšuvums: baļķu imitācijas apdare
-
Logi: PVC dubultstiklojuma
-
Durvis: 5 masīvkoka durvis
-
Kāpnes: spirālveida koka kāpnes iekļautas
🔧 Papildu jauninājumi
-
15 cm minerālvates izolācija
-
Iekšējā koka impregnēšana
-
Virsmas krāsošana (dabīga, balta, pelēka, ekru)
-
Bitumena šindeļi
-
Metāla jumta dakstiņi
-
Notekcauruļu sistēma
-
Ķieģeļu skurstenis
-
Jumta logs
-
Elektroinstalācija un santehnika
-
Arhitektūras un būvprojekts
-
Pamatu sagatavošana
-
Transportēšana un montāža
🎨 Pieejamās apdares un krāsas
-
Impregnēšanas krāsas

-
Jumta seguma krāsas

-
Šindeļu krāsas

-
Jumta dakstiņu krāsas

-
PVC finiera krāsas

🚚 Piegāde un uzstādīšana
-
Bezmaksas piegāde visā Latvijā
-
Uzstādīšana un pamatnes sagatavošana pieejama pēc pieprasījuma
-
Pamatu izbūve – klienta atbildība
📞 Sazinieties ar mums
Sazinieties ar mums, lai pielāgotu savu Ashcombe Lodge un saņemtu profesionālu palīdzību no mūsu komandas.

Create Your Retreat: Bespoke Summer Houses
Design Your Perfect Summer House
Craft your ideal outdoor escape with bespoke layouts, premium materials, and finishes tailored to your lifestyle.