Elderwood Lodge
Elderwood Lodge
- Uzticamas kvalitātes garantija
- Ilgtspējīga koka konstrukcija
- Iekļauta bezmaksas piegāde
Couldn't load pickup availability
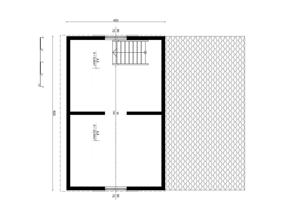
🌲 Elderwood Lodge – kompakta koka mājiņa ar divslīpju jumtu un paplašinātu terasi (19,17 m²)
Elderwood Lodge ir burvīga un kompakta koka mājiņa, ideāli piemērota mazākiem dārziem, sezonālai atpūtai vai nedēļas nogales brīvdienām Latvijā. Ar stāvo divslīpju jumtu, izteiksmīgu baļķu imitācijas fasādi un paplašināto 3 m terasi tā apvieno dabisku šarmu ar praktisku funkcionalitāti. Neskatoties uz nelielo izmēru, plānojums ir atvērts, gaišs, ar pieciem logiem ar slēģiem un iekļautām kāpnēm uz bēniņiem. Izvēles izolācija, krāsošana un jumta seguma uzlabojumi nodrošina papildu komfortu un pielāgošanu.
⭐ Galvenās iezīmes
-
Stāvs divslīpju jumts ar 48° slīpumu un rustikālu profilu
-
5 dubultstiklojuma logi ar koka slēģiem (90×70 cm)
-
2 masīvkoka durvis ar slēdzeni un rokturi (80×205 cm)
-
Baļķu imitācijas apšuvums no priedes un egles
-
3 m paplašināta priekšējā terase
-
Iekļautas kāpnes bēniņu piekļuvei
-
26 mm siena izturībai un izolācijas saderībai
-
Ideāli piemērota kompaktām vasaras mājām, hobiju telpām un dārza atpūtai
📏 Izmēri un struktūra
-
Sienas augstums: 2,20 m
-
Grēdas augstums: 4,55 m
-
Jumta slīpums: 48°
-
Izmēri: 4 × 6,25 m + 3 m terase
-
Ēkas platība: 43,75 m²
-
Izmantojamā platība: 19,17 m²
-
Grīdas platība: 37,21 m²
-
Plātnes biezums: 26 mm
-
Sijas: 4 × 9 cm, 70 cm atstarpe
-
Nesošās kolonnas: 4 × 9 cm, 50 cm atstarpe
-
Grīda: 21 mm gropēti koka dēļi
🪵 Materiāli
-
Konstrukcija: priede un egle
-
Ārējais apšuvums: baļķu imitācijas apdare
-
Logi: dubultstiklojuma, ar ārējām slēģēm
-
Durvis: 2 masīvkoka durvis
-
Kāpnes: iekļautas komplektā
🔧 Papildu jauninājumi
-
10 cm minerālvates izolācija
-
Iekšējā koka impregnēšana
-
Virsmas krāsošana (dabīga, balta, pelēka, ekru)
-
Bitumena šindeļi
-
Metāla jumta dakstiņi
-
Notekcauruļu sistēma
-
Arhitektūras un būvprojekts
-
Pamatu sagatavošana
-
Transportēšana un montāža
🎨 Pieejamās apdares un krāsas
-
Impregnēšanas krāsas

-
Jumta seguma krāsas

-
Šindeļu krāsas

-
Jumta dakstiņu krāsas

-
PVC finiera krāsas

🚚 Piegāde un uzstādīšana
-
Bezmaksas piegāde visā Latvijā
-
Uzstādīšana un pamatnes sagatavošana pieejama pēc pieprasījuma
-
Pamatu izbūve – klienta atbildība
📞 Sazinieties ar mums
Sazinieties ar mums, lai pielāgotu savu Elderwood Lodge un saņemtu profesionālu palīdzību no mūsu komandas.

Create Your Retreat: Bespoke Summer Houses
Design Your Perfect Summer House
Craft your ideal outdoor escape with bespoke layouts, premium materials, and finishes tailored to your lifestyle.